top of page
2015
Year
Type
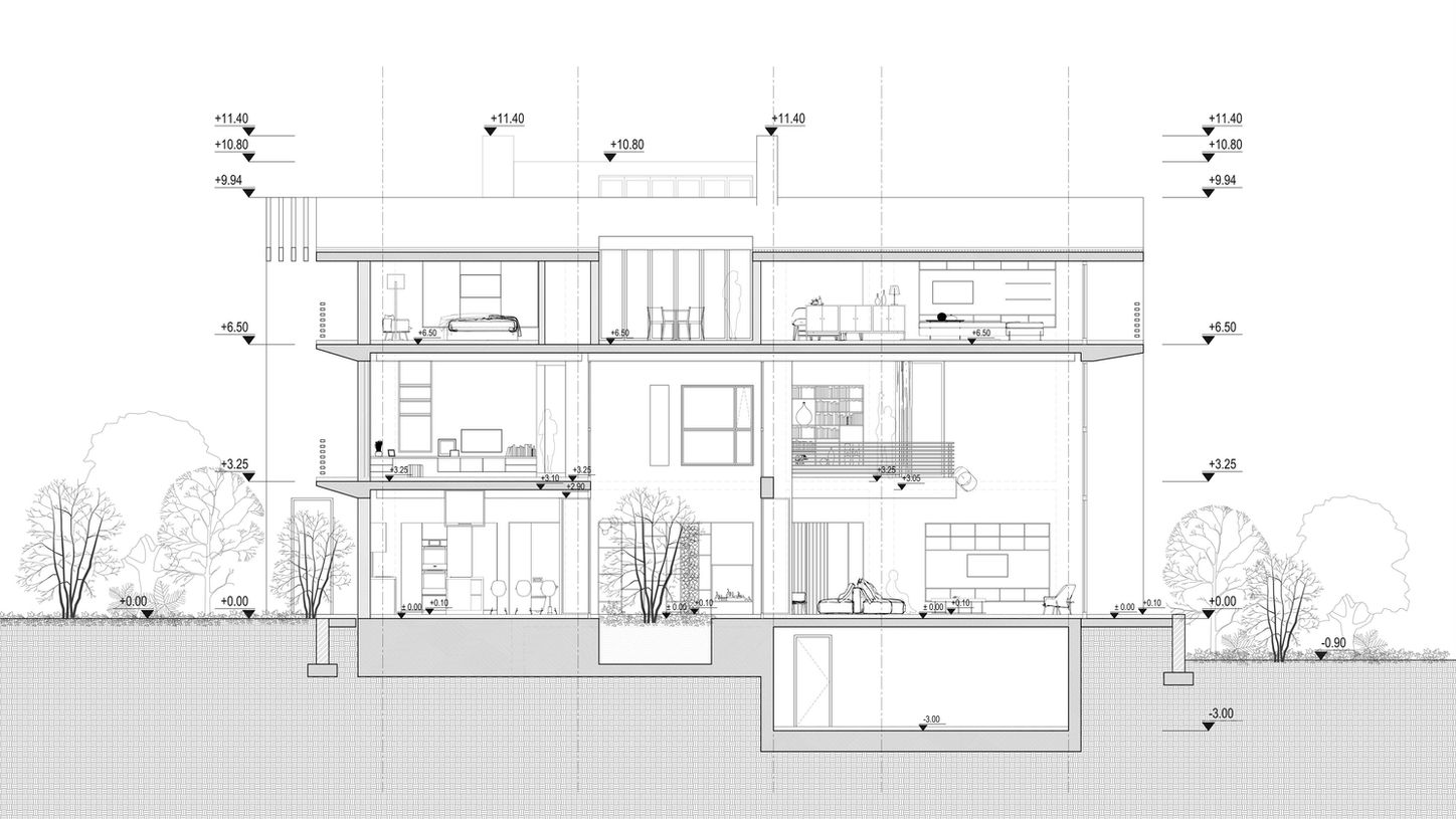
Residential
Location
Kütahya
DESIGN
EKOVILLA
Home
Projects
Contact
Studio
Portfolio
Add
Add
Add
info@makistudio.com.tr
bottom of page