top of page
2015
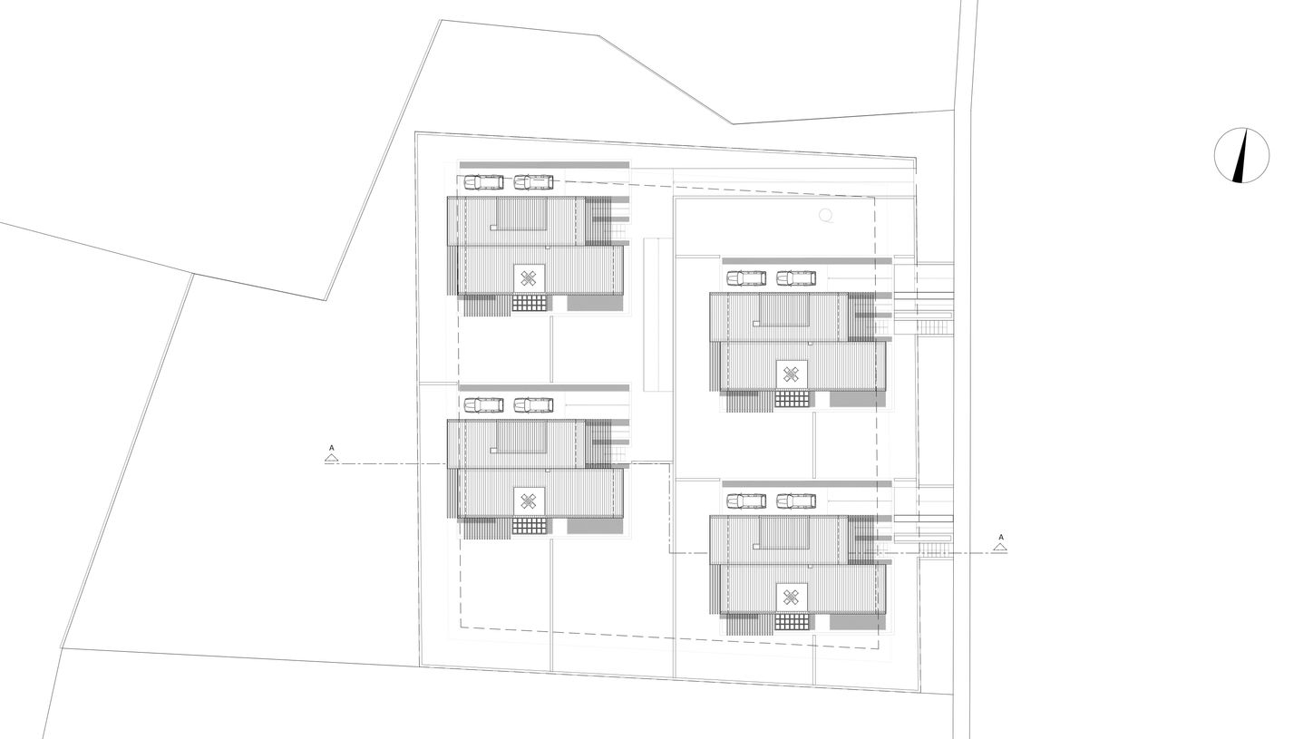
Yıl
Tip
Konut
Yer
Kütahya
TASARIM
EKOVILLA
Anasayfa
Projeler
İletişim
Stüdyo
Portfolyo
Add
Add
Add
info@makistudio.com.tr
bottom of page